広島アスリートマガジンWEBがお届けする『広島の新築分譲マンションSELECT』。カープやサンフレッチェなどのプロスポーツ同様に、広島の街と人に活気を与えてくれる新築分譲マンションの魅力を取り上げます。
今回ご紹介するのは、GAパートナーズがプロデュースする《ソシオ大手町〈T-SQUARE〉》。広島では歴史あるスポットとして知られている「タカノ橋商店街」に誕生する、全177邸の大規模な新築分譲マンションを取り上げます。
☆ソシオ大手町〈T-SQUARE〉の詳細はこちらをクリック☆
《ポイント①》
紙屋町・八丁堀1.5km圏内。タカノ橋商店街に隣接するオンリーワンの立地環境
中区大手町5丁目・「タカノ橋商店街」
長いあいだ、多くの人に愛されてきたこの地が、進化を遂げようとしています。
街の進化を牽引するのは《ソシオ大手町〈T-SQUARE〉》。
紙屋町・八丁堀交差点が約1.5km圏の立地に、『SOCIO(ソシオ)』シリーズの新プロジェクトとなる15階建・177邸の大規模な新築分譲マンションが誕生します。
紙屋町や八丁堀を普段使いでき、暮らしに欠かせない生活利便施設も徒歩圏内に集約。都心生活の躍動感を享受できるプライベートレジデンスとなっています。
また、同物件の敷地内には、タカノ橋商店街の通りから7.5mのセットバックをし、商店街とつながる広々としたオープンスペースを設置。植栽やベンチなどを配した開放感あふれる空間が人々に憩いをもたらします。また、1階には店舗がオープン予定。大手町鷹野橋エリアのシンボルとなるよう、新たな賑わいを生み出していきます。
【ソシオ大手町〈T-SQUARE〉×ペコマガ】
タカノ橋商店街・大手町・千田町の魅力を紹介
#TAKANOBASHI #サキガケLIFE
☆ソシオ大手町〈T-SQUARE〉の詳細はこちらをクリック☆
《ポイント②》
全177邸の大規模レジデンス。スケールメリットを活かした共用施設が充実
街との一体感、そして品位ある意匠デザインを兼ね備えた《ソシオ大手町〈T-SQUARE〉》。建物としての外観美にとどまらない、そのスタイリッシュな佇まいは、新たな賑わいを創出する大手町鷹野橋エリアをひときわ魅力的なロケーションに変えてくれるほどの存在感をもたらしてくれます。
スケールメリットを活かし、敷地内には、「ワークラウンジ」や「パーティールーム」、「ゲストルーム」など、有意義な暮らしを楽しめる共用スペースが充実。多世代が快適に暮らせて、交流も育まれるマンションとなっています。
また、毎日(日曜・祝日を除く)ゴミ出し可能な「各階ダストステーション」、着荷があると集合玄関機や住戸内インターホンに知らせてくれる「宅配ボックス」を設けるなど、暮らし心地を高めるサービスが整っているのも同物件の特徴です。
☆ソシオ大手町〈T-SQUARE〉の詳細はこちらをクリック☆
《ポイント③》
1R〜3LDKまでオリジナリティに富んだプランバリエーション
同物件が注目を集める理由として、豊富なプランバリエーションも挙げられます。Basic Planだけで34タイプもの、暮らしに合わせて選べる多彩なプランを用意。1R(29.85㎡)から3LDK(99.92㎡)まで、シングルから2人暮らし、ファミリーまで、マンション購入検討者のニーズに応える間取りが用意されています。
また、部屋の一角を個性的な空間にアレンジした「BRICKS ONE(ブリックス・ワン)」や、フロアレベル違いの二層空間を創出した「BRICKS CUBE(ブリックス・キューブ)」も魅力です。
以下の項目をクリックすると、同物件の室内をWEB上で体感可能。画期的で個性的な空間が優雅な日常を演出します。
CGアニメーションによる《ソシオ大手町〈T-SQUARE〉》体験ツアーはこちら
お部屋の全てが見れる!バーチャルモデルルーム【SINGLE編】
お部屋の全てが見れる!バーチャルモデルルーム【FAMILY編】
「BRICKS CUBE(ブリックス・キューブ)」体験はこちら
☆ソシオ大手町〈T-SQUARE〉の詳細はこちらをクリック☆
《ポイント④》
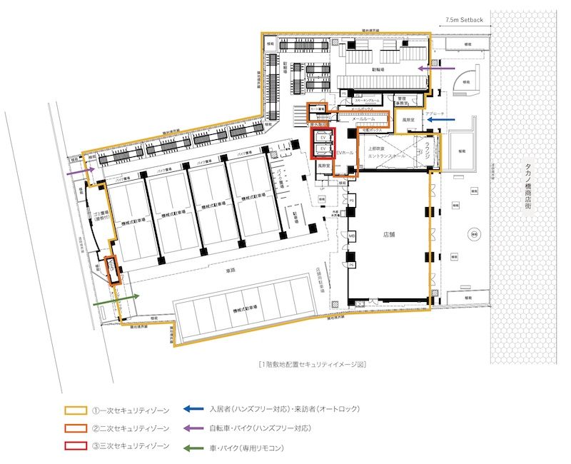
敷地全体を守る幾重ものゾーンセキュリティチェック
ハンズフリーキーで出入りできるスムーズなエントリーシステムを採用。敷地全体をフェンスやコンクリート壁で囲うことにより、プライバシーを確保し、同時にセキュリティを高めています。
セキュリティ面では、エレベーターに乗り込む際にもカギを必要とするなど、自宅玄関扉を含めて4重のセキュリティラインを設けた安心の設計を施し、安心・安全な毎日をサポートします。
☆ソシオ大手町〈T-SQUARE〉の詳細はこちらをクリック☆
《ポイント⑤》
第4期分譲開始。2100万円台〜
《ソシオ大手町〈T-SQUARE〉》を手がけるGAパートナーズは、2010年、総合不動産企業として、広島の地に誕生した企業。設立3年目には、自社分譲マンション『SOCIO(ソシオ)』ブランドを発表。以降、広島都市圏を中心に、地域密着の活動を展開。変化し続ける時代のニーズに真摯に向き合いながら、「お客様の安全・安心・幸せ」を第一に考え、1棟、1棟、付加価値の高いマンションをプロデュースしてきています。
また、12月14日(火)に開催される広島アスリートマガジン初の試みとなるオンラインイベントの協賛企業(冠スポンサー)にもなっています。
オンラインイベントの詳細はこちら
GAパートナーズpresents
「広島アスリートマガジン FES 2021~スポーツの力で広島を元気に!~」
常に未来を見据え、広島の街に活気を与える話題のプロジェクトを積極的に展開し続けるGAパートナーズ。ぜひ一度、モデルルームでその空間をご体感ください。









